0.00 грн.
Оформить заказ- Обзор товара
- Отзывов (0)
Трансформатори струму Т-0,66-2; Т-0,66А-2 призначені для передачі сигналу вимірювальної інформації приладам вимірювання, автоматики, сигналізації та керування в електричних колах змінного струму частотою 50 Hz або 60 Hz.
Трансформатори струму Т-0,66-2; Т-0,66А-2 відповідають вимогам Технічного регламенту законодавчо регульованих засобів вимірювальної техніки, затвердженого постановою Кабінету Міністрів України від 13.01.2016 № 94, ДСТУ EN 61869-1, ДСТУ EN 61869-2.
Технічні характеристики
| Тип, варіант конструктивного виконання | Номінальна первинна сила струму, А | Номінальна вторинна сила струму, А | Клас точності | Найвища напруга, kV |
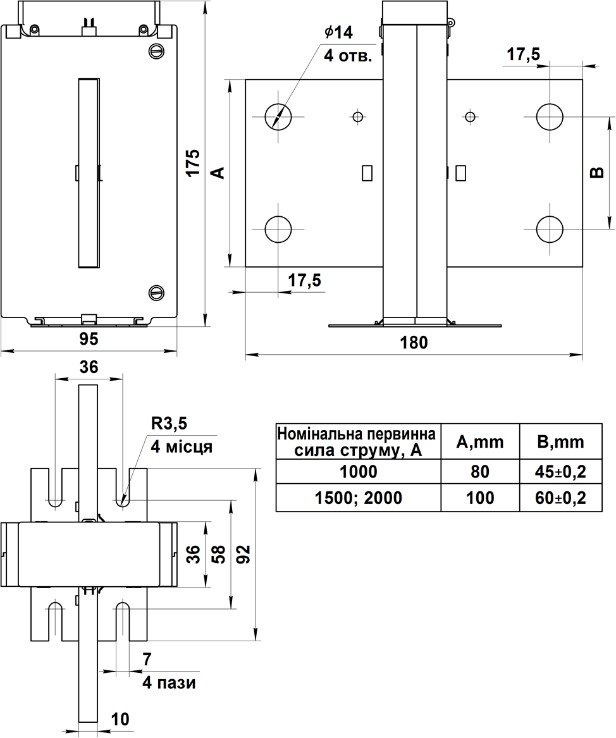
| Т-0,66-2; Т-0,66А-2* | 1000,1500,2000 | 5 | 0,2; 0,5S; 0,5; 1 | 0,72 |
| * – на вимогу споживача можливе виготовлення трансформаторів із сердечником з аморфного сплаву. | ||||
Номінальне вторинне навантаження з коефіцієнтом потужності соsj2 = 0,8 5 V×А.
Умови експлуатації:
- температура навколишнього повітря від мінус 45 °С до плюс 40 °С;
- відносна вологість повітря до 98 % при температурі плюс 25 °С.
Маса, не більше 3,1 kg.
Міжповірочний інтервал:
- трансформаторів Т-0,66-2 – 5 років;
- трансформаторів Т-0,66А-2 – 16 років.
| Виконання | Матеріал шини |
| 1000/5 | Алюміній |
| 1500/5 | Мідь |
| 2000/5 | Мідь |
Габаритні, установчі та приєднувальні розміри трансформаторів Т-0,66-2; Т-0,66А-2

Нет отзывов о данном товаре.
